Villa V239 - UAE

Project overview

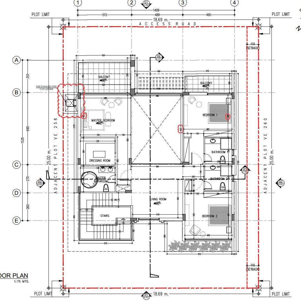
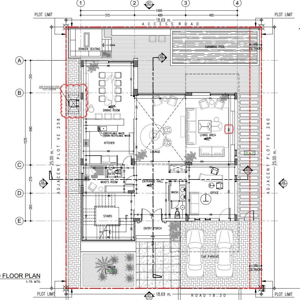
This project focuses on the design and realization of a contemporary single-family residence for a family of four in Sobha Hartland, Dubai–UAE. The aim is to create a modern, sustainable home that blends functionality with refined aesthetics, tailored to meet the lifestyle needs of its residents.

Details

I developed the villa’s layout and design concept, including exterior architecture, interior spaces, and landscaping, and prepared the full set of execution drawings to realize the project vision.

Specifications

Area of site

450m2

Date

2022

Status of the project

Under construction

Tools used

3dmax-revit-lumion

My sketches

Results

Completed on time and under budget, the project achieved outstanding results. The client praised both the design and execution, with the final outcome surpassing expectations