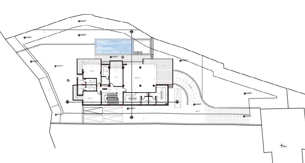
VILLA ABADIYEH-LEBANON

Project overview

Design of a vacation home in the Abadiyeh mountains, combining modern style with a Lebanese touch to create a serene family retreat.

Details

Contemporary villa with clean horizontal lines, flat and sloped roof volumes, extensive floor-to-ceiling glazing, and warm natural cladding. Key features include wide terraces, an infinity-edge pool, open-plan interiors, and seamless integration with landscaped gardens and mountain views.

Specifications

Area of site

1200m2

Date

2021

Status of the project

Under construction

Tools used

Photoshop,Autocad,3dmax, lumion

My sketches

TOP VIEW