SABRAN VILLA- UAE

Project overview

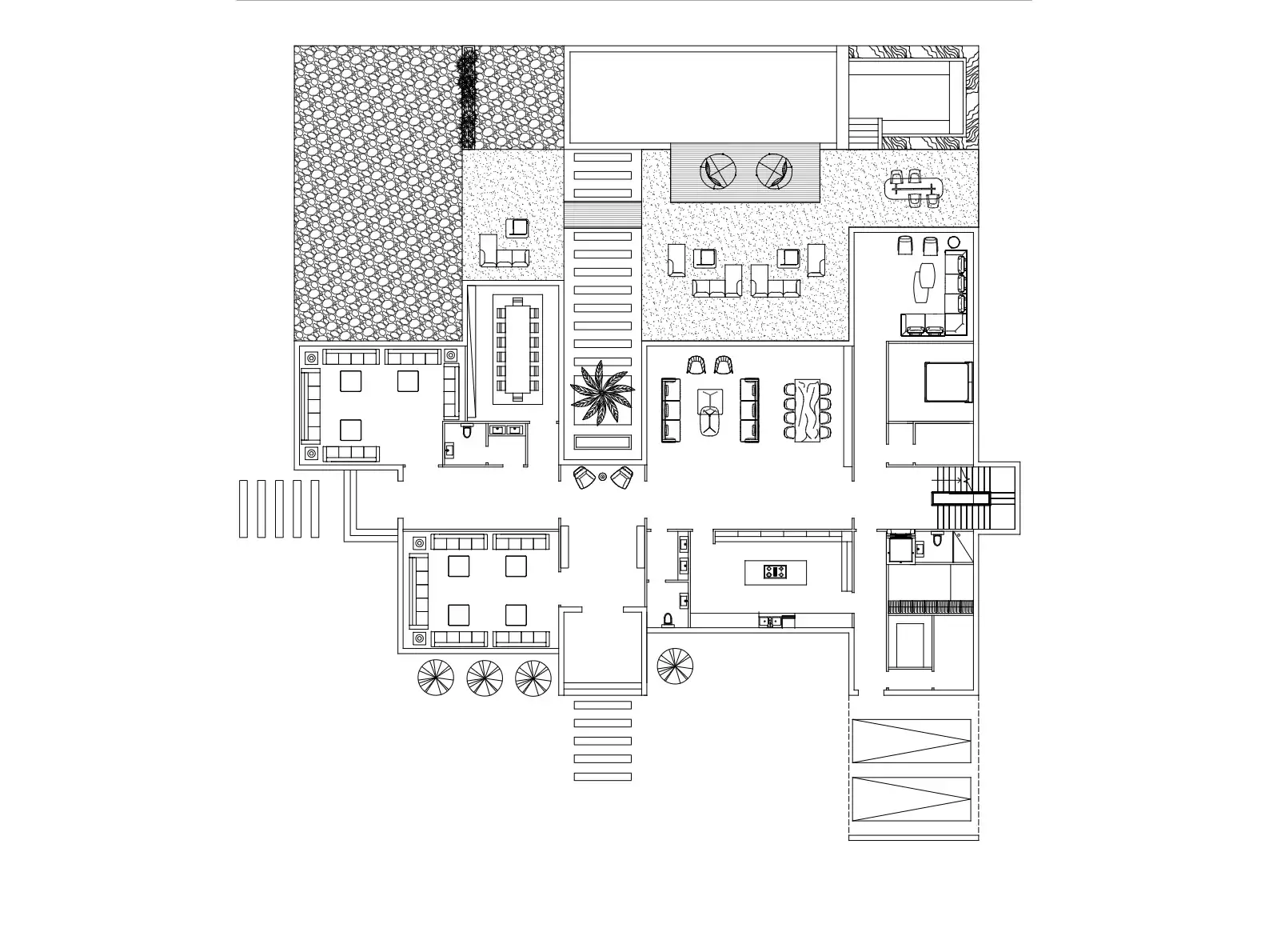
Luxury 6-bedroom villa in Ajman designed in a contemporary style, emphasizing seamless integration between indoor and outdoor spaces. The project features open-plan living areas, expansive glazing for natural light, landscaped terraces, and refined material selections that balance elegance with functionality.

Details

My contribution focused on creating the villa’s design concept, including spatial layout, exterior architecture, and landscape integration.

Specifications

Area of site

3500M2

Date

2023

Tools used

3DMAX,AUTOCAD,LUMION

  • A contemporary layout combining private bedrooms, social lounges, and open terraces, designed. to maximize comfort, privacy, and indoor-outdoor living