HATTA R - UAE

Project overview

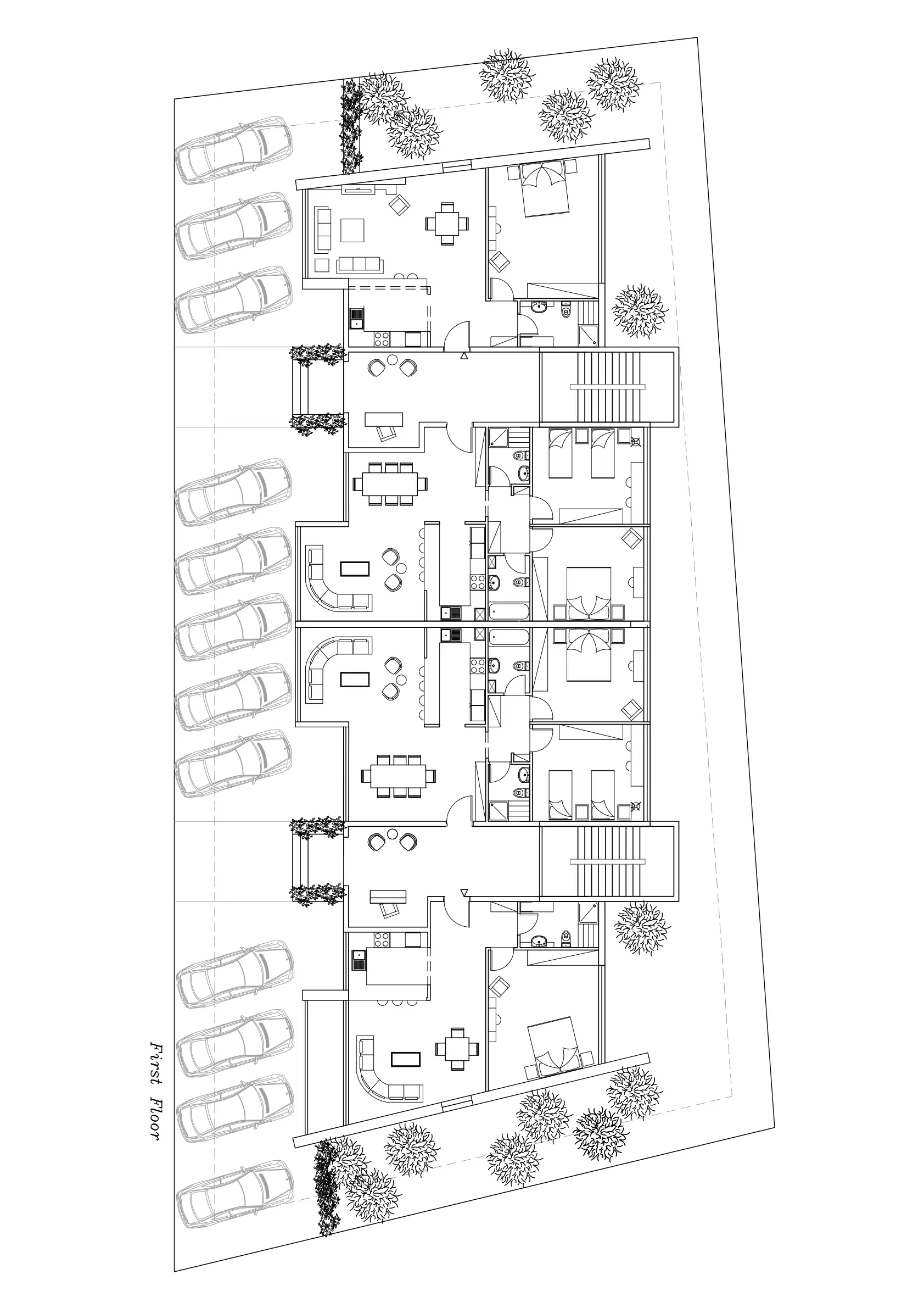
This project involves the design and execution of multi-apartment units for Airbnb in Hatta, Dubai. Set within a neighborhood of traditional and modern homes, the goal is to create sustainable, functional, and modern spaces that offer both comfort and aesthetic appeal for short-term stays.

Details

A modern reinterpretation of traditional Arabic architecture, featuring clean lines, arched details, domed elements, and wooden screens. The design balances contemporary living with cultural authenticity.

Specifications

Area of site

700m2

Date

2022

Tools used

3dmax,autocad ,lumion

My sketches

Results

his project was a great experience, exploring the Airbnb concept and optimizing every corner of the space for functional, comfortable, and culturally authentic living.