GREEN NEIGHBERHOUD HOUSING

Project overview

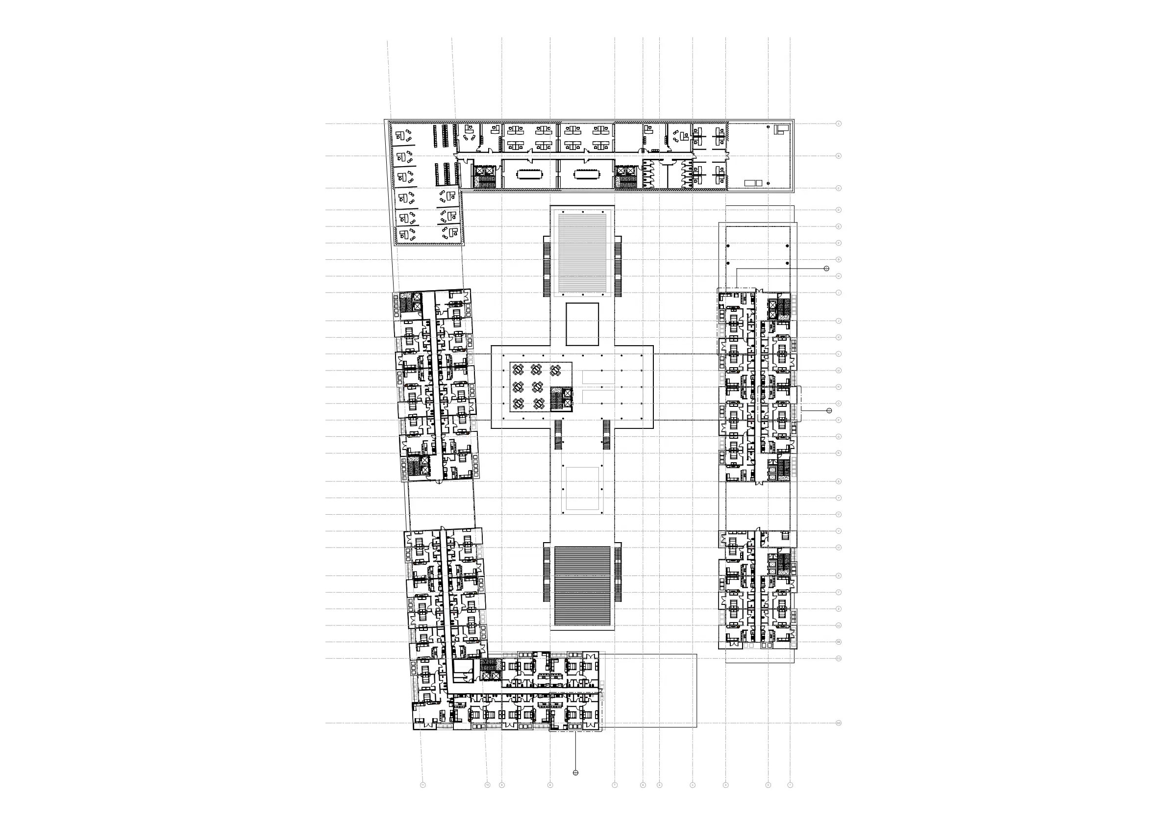
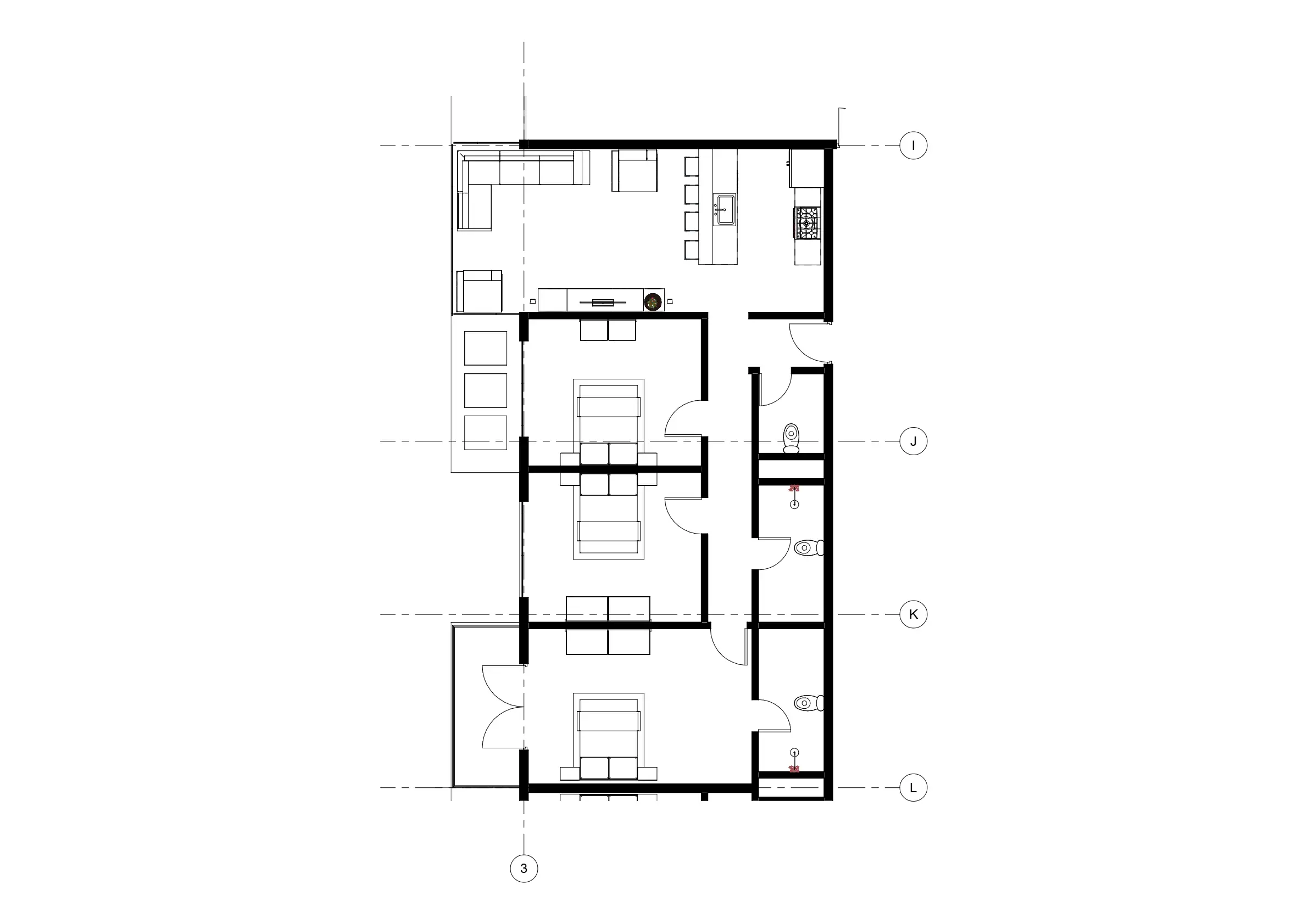
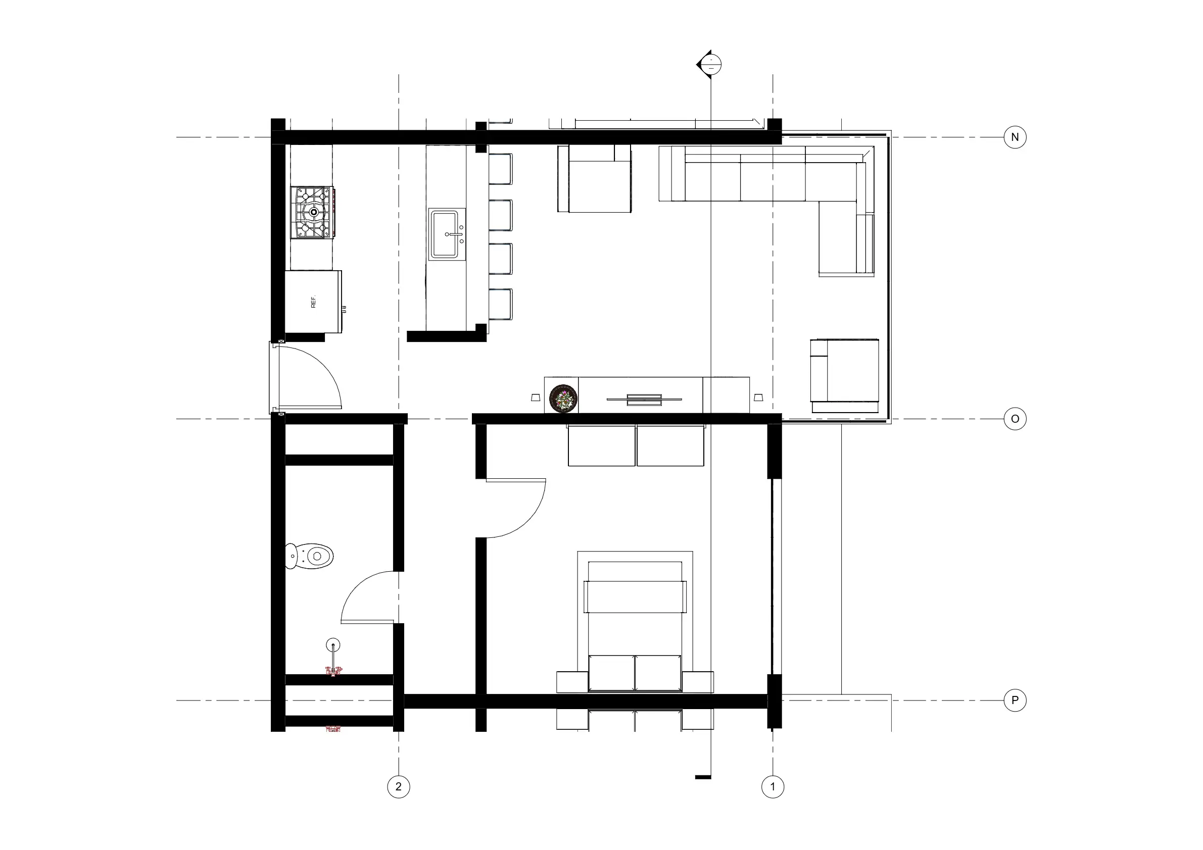
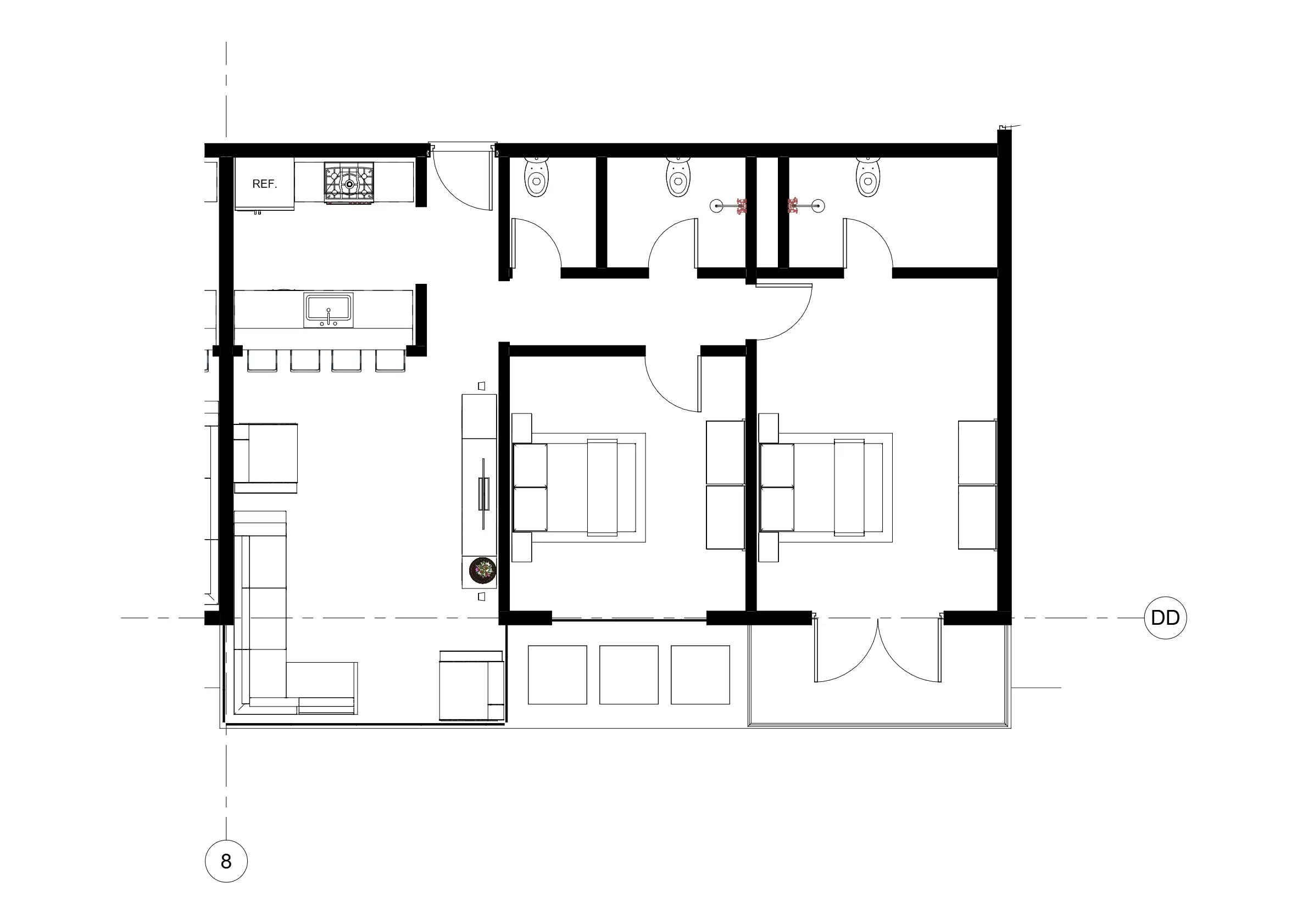
This project involves the design and execution of a new single-family home for a family of four. The site is located in a suburban neighborhood with a mix of traditional and modern homes, and the goal of the project is to create a modern and sustainable home that is both functional and beautiful.

Details

My contributions have been instrumental in shaping the overall vision and design of the project. I oversaw every aspect of architecture, construction administration, through furnishing and styling.

Specifications

Area of site

14000m2

Date

2022

Tools used

revit , lumion

My sketches

Results

The project was a great success. The project was completed on time, and the client was very satisfied with the final result. The design plan was executed effectively, and the resulting space has exceeded expectations. The team also finished construction under the calculated budget.