BEAUTY LOUNGE-LEBANON

Project overview

Contemporary beauty lounge in Beirut, Lebanon, designed and executed to elevate the client experience. The project combines hospitality and wellness in one refined environment.

Details

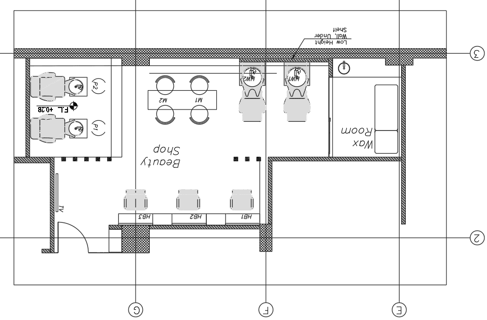
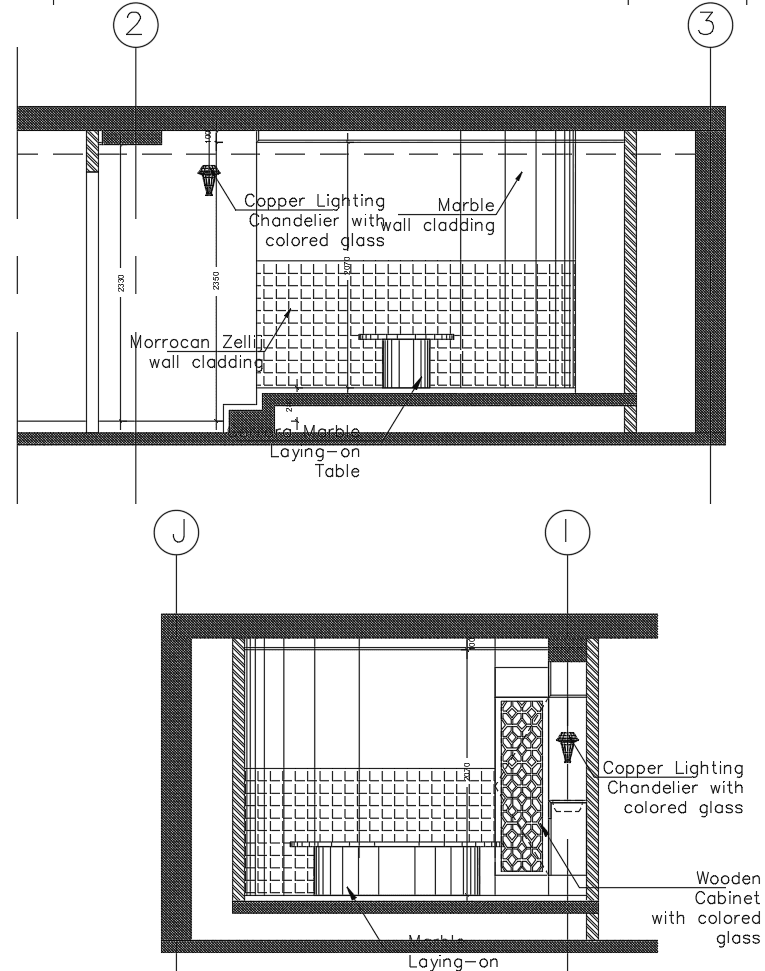
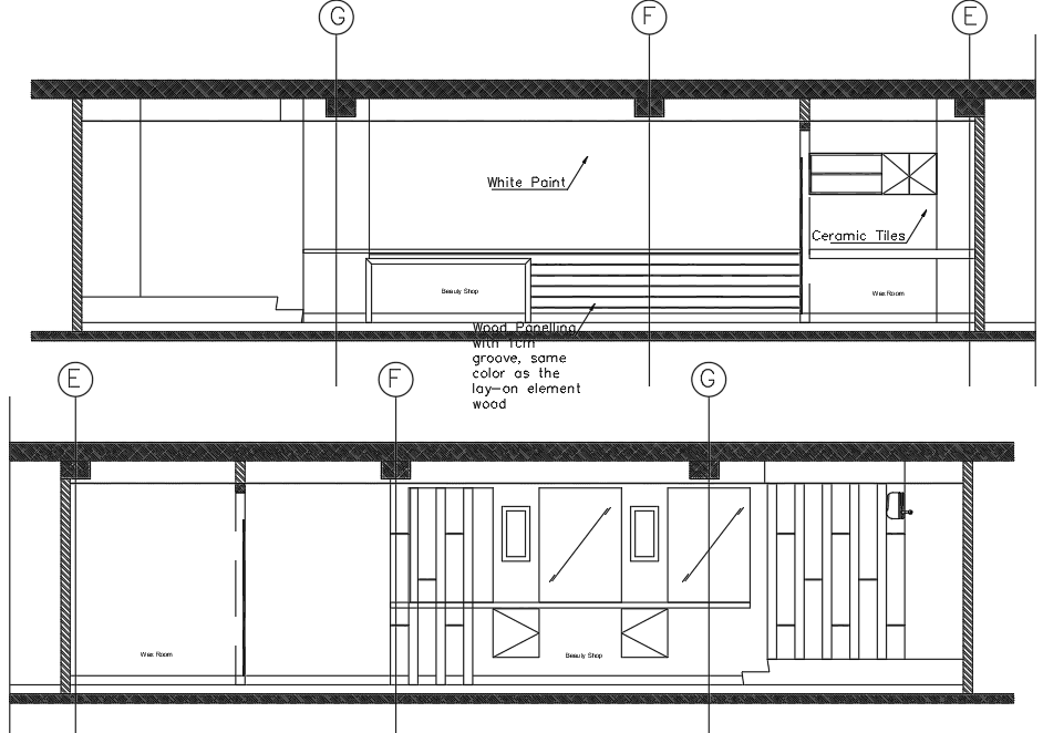
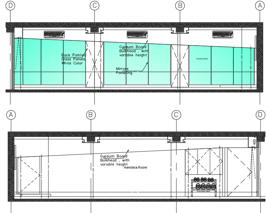
Scope included concept design, execution drawings, and supervision. Functions integrated: coffee shop, spa, Zumba room, and beauty salon. Design focused on modern lines, balanced materials, and seamless circulation.

Specifications

Area of site

300m2

Date

2019

Tools used

3Dmax, Vray,Autocad 

My sketches

Results

Delivered a multi-functional destination that merges luxury and comfort. The design enhanced brand identity and created a sophisticated, memorable client journey.